Essays.club - Получите бесплатные рефераты, курсовые работы и научные статьи
Поиск

Проектирование наладок для тисочного комплекса

Автор:   •  Апрель 16, 2021  •  Контрольная работа  •  1,210 Слов (5 Страниц)  •  473 Просмотры

Страница 1 из 5

МИНОБРНАУКИ РОССИИ

Федерального государственного бюджетного образовательного

учреждения высшего образования

«Ижевский государственный технический университет им. М.Т. Калашникова

(ФГБОУ ВО «ИжГТУ имени М.Т. Калашникова»)

Воткинский филиал ИжГТУ им. М.Т. Калашникова

Кафедра: «Технология машиностроения и приборостроения»

Работа защищена с оценкой

«_____________________»

________________ 20___г.

                                   Контрольная работа

тема: «Проектирование наладок для тисочного комплекса»

по дисциплине: «Технологические оснастки»

Выполнил:                                                                          студент группы Б17-721-21з                                                  ______________Русанов С.Е.                                          

Руководитель:                                ______________ д.т.н профессор                                                                                                                                

                                                                                          Сентяков Б.А.

Рецензия:

степень достижения поставленной цели работы___________________________

полнота разработки темы______________________________________________

уровень самостоятельной работы обучающегося__________________________

недостатки работы___________________________________________________

____________________________________________________________________

Воткинск

2021

Содержание

  1. Эскиз обрабатываемой детали...................................................................3
  2. Схема базирования......................................................................................4
  3. Расчёт силы закрепления............................................................................5
  4. Расчёт зажимного устройства....................................................................6
  5. Анализ погрешности при закреплении деталей.......................................7
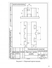
  6. Сборочный чертеж наладки……………………………………………..12

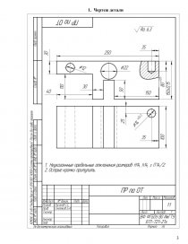
  1. Чертеж детали

[pic 1]

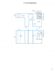
2. Схема базирования.

       

[pic 2]

   

3. Расчет силы закрепления.

Расчетная схема

[pic 3]

[pic 4]

Где W – сила закрепления;

МР – момент резания (МР=150 Н*м);

a – плечо силы закрепления (a=0,05 м);

К – коэффициент запаса. [pic 5]

где        К0=1,5 –гарантированный коэффициент запаса силы; К1=1,2…1,8 – коэффициент учитывающий увеличение силы при затуплении режущего инструмента (принимается К1=1,5); К2 – коэффициент учитывающий увеличение силы резания (при чистовой обработке К2=1); К3=1 – при непрерывном резании; К4 – коэффициент учитывает силу закрепления (для механизированных устройств К4=1); К5 – коэффициент учитывающий удобство управления устройством (γ>90°), (К5=1,2); К6 – коэффициент учитывающий наличие сдвигов в элементах и конструкции (К6=1,5). Коэффициент  К  примем  равным 2,7:

...

Скачать:   txt (9 Kb)   pdf (635.8 Kb)   docx (913.4 Kb)  
Продолжить читать еще 4 страниц(ы) »
Доступно только на Essays.club