Essays.club - Получите бесплатные рефераты, курсовые работы и научные статьи
Поиск

Организация дорожного движения на перекрестке

Автор:   •  Январь 15, 2022  •  Практическая работа  •  1,224 Слов (5 Страниц)  •  357 Просмотры

Страница 1 из 5

Федеральное государственное образовательное учреждение высшего профессионального образования «Сибирская государственная автомобильно-дорожная академия (СибАДИ)»

Факультет «Автомобильный транспорт»

Кафедра «Организация и безопасность движения»

Отчет по практической работе №2

по дисциплине «Организация и безопасность движения»

на тему «Организация дорожного движения на перекрестке»

Омск – 2013

Цель: закрепить основные понятия по организации движения на перекрестке.

Задачи:

-   изучить схемы перекрестков;

-   освоить терминологию;

-   понять схемы дорожного движения;

-   освоить представление об интенсивности транспортных потоков;

- уметь подготовить предложения по улучшению организации движения на перекрестке.

1. Основные понятия и условные обозначения

Перекресток - это один из сложных объектов регулирования дорожного движения. Включает в себя: пересечение транспортных потоков, множество дорожных знаков, светофорное регулирование, пешеходные потоки.

Транспортные потоки - это направления разрешенного движения.

Пешеходные потоки - это направления разрешенного движения пешеходов.

    Таблица 1

Основные понятия и условные обозначения

Понятие

Условное обозначение

Транспортный поток

        N1[pic 1]

Пешеходный поток

        N1[pic 2]

Остановочный пункт маршрутного транспорта

[pic 3][pic 4]

Светофорная установка

[pic 5]

Направляющие ограждения для разделения движения АТС и пешеходов

[pic 6]

Обозначенный пешеходный переход

[pic 7]

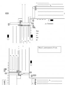
2. Общая схема перекрестка

[pic 8][pic 9][pic 10][pic 11][pic 12][pic 13][pic 14][pic 15][pic 16][pic 17][pic 18][pic 19][pic 20][pic 21][pic 22][pic 23][pic 24][pic 25][pic 26][pic 27][pic 28][pic 29][pic 30][pic 31][pic 32][pic 33][pic 34][pic 35][pic 36][pic 37][pic 38][pic 39][pic 40][pic 41][pic 42][pic 43][pic 44][pic 45][pic 46][pic 47][pic 48][pic 49][pic 50][pic 51][pic 52][pic 53][pic 54][pic 55][pic 56][pic 57][pic 58][pic 59][pic 60][pic 61][pic 62][pic 63][pic 64]

[pic 65][pic 66][pic 67]

[pic 68][pic 69][pic 70][pic 71][pic 72][pic 73]

[pic 74][pic 75][pic 76][pic 77][pic 78][pic 79]

[pic 80][pic 81][pic 82]

[pic 83][pic 84]

[pic 85][pic 86]

[pic 87]

[pic 88]

[pic 89][pic 90]

[pic 91][pic 92][pic 93][pic 94]

[pic 95][pic 96][pic 97][pic 98][pic 99][pic 100][pic 101][pic 102]

[pic 103][pic 104][pic 105][pic 106][pic 107]

[pic 108][pic 109][pic 110][pic 111][pic 112]

[pic 113]

Перекресток на пересечении ул. Мира и ул. Химиков - это перекресток трех направлений. На протяжении всего участка уложено асфальтобетонное покрытие, состояние покрытия - удовлетворительное, имеется несколько выбоин на проезжей части. Все канализационные люки и ливневые решетки, находятся в одном уровне с дорогой и не мешают движению транспортных потоков. Дорожная разметка местами стерта и требует обновления, но находится в хорошем состоянии. Для движения пешеходов имеются тротуары отделённые от проезжей части зелёными насаждениями. Перекресток оборудован необходимыми дорожными знаками, везде установлена светофорная сигнализация. Кривых, подъёмов и спусков не имеется.

...

Скачать:   txt (8.2 Kb)   pdf (299.9 Kb)   docx (151.6 Kb)  
Продолжить читать еще 4 страниц(ы) »
Доступно только на Essays.club