Essays.club - Получите бесплатные рефераты, курсовые работы и научные статьи
Поиск

Звіт з практики в ІНТЕРПАЙП СТАЛЬ

Автор:   •  Май 16, 2018  •  Отчет по практике  •  6,286 Слов (26 Страниц)  •  1,775 Просмотры

Страница 1 из 26

[pic 1]

ЗМІСТ

1. Стисла характеристика підприємства……………………………….

2. Технологічна схема роботи цеха та його основне

обладнання……………………………………………………………..

3. Структура ремонтної служби цеху і обов'язки

слюсаря ремонтника…………………………………………………..

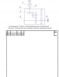
4. Призначення,  устрій і робота призначеної машини (механізму)

її технічна характеристика (кінематична схема призначеного

механізму)………………………………………………………

5. Основні правила технічної експлуатації призначеної

машини………………………………………………………………….

6.  Технологія капітального ремонту призначеної машини…………

7.  Характерні види зносу основних деталей і вузлів обладнання

 та пропонуємі міроприємства по підвищенню їх зносостійкості і надійності конструкції………………………………………………

8.  Основні методи відновлення і ремонту деталей і вузлів

призначеного обладнання…………………………………………….

9.  Особливості монтажу обладнання. Вимоги і технічні умови,

 які додержують до точності його встановлення. Пуско – налагоджувальні роботи………………………………………………………………

10. Характеристика системи змащування. Вибір і обгрунтування мастил. Таблиця і схема змащування основних

вузлів обладнання………………………………………………………………

11. Техніка безпеки при технічному обслуговуванні і ремонтах

машини………………………………………………………………….


[pic 2]

Аркуш

Зм..

Арк.

№ докум.

Підпис

Дата

        

 1 СТИСЛА ХАРАКТЕРИСТИКА ПІДПРИЄМСТВА

ІНТЕРПАЙП СТАЛЬ - перший металургійний завод, побудований з нуля в Україні майжеза півстоліття з загальним обсягом інвестицій 700 млн доларів.

ІНТЕРПАЙП СТАЛЬ - це найбільший електросталеплавильний комплекс з виробництва круглої сталевої заготовки у Східній Європі. ІНТЕРПАЙП СТАЛЬ покликана забезпечити трубне і колісне виробництво компанії власної сталевий заготівлею.

Потужність нового заводу - 1,32 млн. Тонн круглої сталевої заготовки в год.Завод об'єднує інноваційністалеплавильні технології, новий підхід до виробничої культури і сучасні арт-інсталяції Олафура Еліассона, що стали невід'ємною частиною підприємства.

У комбінації - це нова філософія металургії 21 століття - новий виток у розвитку отраслі.Завод об'єднує інноваційні сталеплавильні технології, новий підхід до виробничої культури і сучасні арт-інсталяції Олафура Еліассона, що стали невід'ємною частиною підприємства.

У комбінації - це нова філософія металургії 21 століття - новий виток у розвитку отраслі.Економіческіе і соціальні аспекти експлуатації ЕСПК включають в себе:

річний приріст платежів до бюджетних і позабюджетних фондів - 150 мільйонів гривень скорочення споживання природного газу в Дніпропетровській області на 60 млн м3 на рік (що відповідає тижневого споживання газу Дніпропетровському або тримісячного споживання газу на ІНТЕРПАЙП НТЗ) скорочення валових викидів шкідливих речовин в атмосферу більш ніж в 2,5 рази створення понад 700 нових робочих місць.

Проектна потужність споживання електроенергії підприємством — 350 МВт[2]. Електроживлення підприємства здійснюється від Придніпровської ТЕС. Для безперебійного забезпечення електроенергією на відкритому розподільному пристрої Придніпровської ТЕС проведено реконструкцію трьох комірок 330 кВ. Збудована нова трансформаторна підстанція «Пічна». Найпотужніша в СНД. Для захисту обладнання на підстанції використовуються сучасні мікропроцесорні пристрої релейного захисту.

[pic 3]

Аркуш

Зм..

Арк.

№ докум.

Підпис

Дата

...

Скачать:   txt (89.7 Kb)   pdf (1.1 Mb)   docx (431.9 Kb)  
Продолжить читать еще 25 страниц(ы) »
Доступно только на Essays.club