Essays.club - Получите бесплатные рефераты, курсовые работы и научные статьи
Поиск

Разработка штампа мелкой штамповки

Автор:   •  Январь 6, 2019  •  Курсовая работа  •  2,531 Слов (11 Страниц)  •  492 Просмотры

Страница 1 из 11

Федеральное агентство по образованию РФ[pic 1]

Государственное образовательное учреждение высшего

профессионального образования

Набережно-Челнинский институт Казанского Федерального Университета

Кафедра “Машины и технология обработки металлов

давлением”

Записка к курсовому проекту

КР 1. 1151110.1.07.00.00 ПЗ

по дисциплине “Технология листовой штамповки”

Выполнил студент

гр. 1151110

Гатауллин Б.И

Проверил ассистент

Юмадилов В.Н

Содержание[pic 2]

1.Анализ исходных данных………………………………………………..3

2.Анализ технический требований………………………………………..5

3.Выбор варианта и определение структуры технологического

Процесса..…………………………………………………………………..7

4.Выбор оптимального раскроя…………………………………………...9

5.Расчёты энергосиловых параметров штамповки……………………..12

6.Конструирование штампа………………………………………………27

7.Выбор материалов деталей штампа……………………………………29

8.Выбор технологического оборудования………………………………31

9.Проверочные расчеты…………………………………………………..33

10.Устройство и работа штампа...………………………………………..35

11.Заключение…………………………………………………………….37

12.Литература……………………………………………………………..38


Анализ исходных данных[pic 3]

Выбор типа производства

Выберем тип производства по [1, с. 7]. Основной характеристикой серийности в штамповочном производстве является количество операций, закреплённых за прессом и программа выпуска. Так как операций у нас три и каждая закреплена за своим прессом, а программа выпуска составляет 15000 деталей, принимаем массовое производство. В крупносерийном и массовом производстве холодная листовая штамповка характеризуется применением сложных совмещено комбинированных штампов, многопозиционной последовательной штамповки в ленте, механизацией и автоматизацией процессов штамповки, созданием быстроходных автоматических прессов и специальных автоматов, применением методов, заменяющих чистовую обработку резанием. Однако в данном случае эти методы не применимы к нашей детали, и нами применяется штамповка последовательного действия.

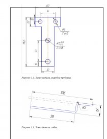
Эскиз детали изображён на рисунках 1.1, 1.2, 1.3.

[pic 4][pic 5]

Рисунок 1.1. Эскиз детали, вырубка-пробивка.

[pic 6]

Рисунок 1.1. Эскиз детали, гибка.

[pic 7][pic 8]

Рисунок 1.2. Эскиз детали, разрезка.

Анализ технических требований

         Сопрягаемыми поверхностями детали являются 2 отверстия, равноудаленных от центра осей детали на обоих заготовках. На рисунке 1.3 так же деталь сопрягается по центру осей. Присутствуют все необходимые размеры и допуска.

Допуска размеров, определяющих форму наружного контура, соответствуют 10-12 квалитетам точности. Допуска размеров отверстий детали соответствуют 9 и 12 квалитетам точности. Выполнение таких технических требований обеспечивается штамповкой в штампе совмещённого действия. Все технические требования могут быть выполнены методами холодной листовой штамповки.

Анализ свойств материала детали

Сталь 20 обладает следующим хим. составом:

- С 0,17-0,24

- Si 0.17-0.37

- Mn 0.35-0.65

- Ni до 0,3

- S до 0,04

- Р до 0,035

- Cr до 0,25

- Cu до 0,3

- As до 0,8

Технологические свойства материала 20: свариваемость – без ограничений; флокеночувствительность – не чувствительна; склонность к отпускной хрупкости – не склонна.

Отношение предела текучести к пределу прочности составляет σтв=0.31 при оптимальном 0.3. Особенностью корозионно-стойких сталей [3] является высокое сопротивление деформированию и интенсивное упрочнение в процессе холодное штамповки.

...

Скачать:   txt (33.6 Kb)   pdf (2 Mb)   docx (528.1 Kb)  
Продолжить читать еще 10 страниц(ы) »
Доступно только на Essays.club