Essays.club - Получите бесплатные рефераты, курсовые работы и научные статьи
Поиск

Правила техники безопасности при работе на круглопильных станах

Автор:   •  Ноябрь 22, 2018  •  Реферат  •  12,903 Слов (52 Страниц)  •  767 Просмотры

Страница 1 из 52

Содержание:

  1. Технологический рисунок.
  2. Чертёж деталей боковой стенки.
  3. Описание шкатулки.
  4. Спецификация.
  5.  Технологическая карта.
  6. Описание материалов.
  7. Список оборудования станков
  8. Техника безопасности на станках
  9. Охрана труда

Технологический рисунок.

[pic 1]


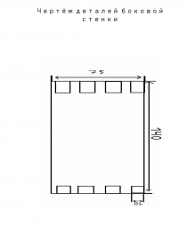
Чертёж деталей боковой стенки

[pic 2]

     

                         Описание изделия

Предназначен для хранения ювелирных украшений.

 Имеет не разборную конструкциях.

 Используют живых помещение.

Шкатулка собрана из шипов примыых ящичные шипов и клея, дно и крышка сделано из фанеры,

Боковая стенка заделано    из сосны выдвижной

Ящик сделан из фанеры шкатулка отделано эмалей.

 

 

 

Спецификация деталей и сборке единиц.

НАИМЕНОВАНИЕ

ДЕТАЛЕЙ

КОЛ-

ВА

МАТЕРИАЛ

РАЗМЕРЫ ДО

ОБРАБОТКЕ

РАЗМЕРЫ ПОСЛЕ ОБРАБОТКЕ

ОБЬЕМ

МАТЕРИАЛА

Д.

Ш.

Т.

ГЛ

Д.

Ш.

Т.

ГЛ.

1

Стенка передняя

1

СОСНА

           218

68

22

198

62

16

0,00036

2    

Стенка задняя

1

СОСНА

218

68

22

198

62

16

0,00039

3  

Стенка боковая

2

СОСНА

159

68

22

139

62

16

0,00047

4

Петля

1

СОСНА

84

46

20

64

40

14

0,00008

5

 Дно

1

Фанера

207

148

16

197

138

16

0,00067

6

Крышка

1

Фанера

207

148

16

197

138

16

0,00067

7

Ножки

4

Фанера

35

35

16

25

25

16

0,001

8

Стенка передняя

Ящика

2

Фанера

73

38

6

63

28

6

0,00006

9

Стенка боковая

Ящика

2

Фанера

115

38

6

105

28

6

0,00007

10

Дно ящика

1

Фанера

107

66

2

97

56

2

0,00006

11

Направляющей ящика

2

Фанера

113

10

10

103

10

10

0,0006

12

Посад

1

Фанера

91

43

3

81

33

3

0,00017

13

Опора для направляющей ящика

1

Сосна т

118

53

36

98

47

30

0,000225144

...

Скачать:   txt (85.4 Kb)   pdf (697.8 Kb)   docx (58.9 Kb)  
Продолжить читать еще 51 страниц(ы) »
Доступно только на Essays.club