Essays.club - Получите бесплатные рефераты, курсовые работы и научные статьи
Поиск

Экспертиза проектных материалов цеха наружной мойки и окраски машин и проверка обеспечения безопасности людей при пожаре

Автор:   •  Июнь 18, 2019  •  Курсовая работа  •  6,319 Слов (26 Страниц)  •  568 Просмотры

Страница 1 из 26

Министерство образования и науки Астраханской области

Государственное автономное образовательное учреждение

Астраханской области высшего образования

Астраханский государственный архитектурно - строительный университет

[pic 1]

Кафедра Пожарной безопасности и водопользования

КУРСОВОЙ ПРОЕКТ

по дисциплине «Пожарная безопасность в строительстве»

Тема: «Экспертиза проектных материалов цеха наружной мойки и окраски машин и проверка обеспечения безопасности людей при пожаре»

Вариант 1

Выполнила:

Студент 5 курса

группы ПБ-51-14

Ахмедова М. М.

Подпись________

Руководитель:

Ст. преп. кафедры ПБиВ

Костина Е.В.

Оценка________

Подпись_________

Члены комиссии:

________________

________________

________________

Астрахань 2019


СОДЕРЖАНИЕ

ИСХОДНЫЕ ДАННЫЕ        3

ВВЕДЕНИЕ        5

II. ЭКСПЕРТИЗА ПРОЕКТНЫХ МАТЕРИАЛОВ        9

2.1. Экспертиза архитектурно-строительной части проекта        9

2.1.1. Экспертиза класса функциональной пожарной опасности здания        9

2.1.2. Экспертиза основных строительных конструкций        9

2.1.3. Экспертиза решений по дополнительным требованиям к конструкциям и материалам        14

2.1.4. Экспертиза объемно-планировочных решений        15

2.1.5. Экспертиза противопожарных преград        19

2.1.6. Экспертизы эвакуационных путей и выходов        21

2.1.7. Экспертиза противодымной защиты здания        22

2.1.8. Экспертиза технических решений, обеспечивающих деятельность пожарных подразделений        25

2.2. Экспертиза основных решений по системам противопожарной защиты        27

2.3. Анализ выявленных нарушений        28

III РАСЧЕТНАЯ ЧАСТЬ        30

3.1. Порядок определения расчетного времени эвакуации людей из помещений        30

3.2. Порядок проведения расчета для определения необходимого (требуемого) времени эвакуации        35

3.2.3. Расчет критической продолжительности пожара по программе        35

3.2.4. Проверка обеспечения безопасности людей при пожаре        37

Вывод        38

СПИСОК ЛИТЕРАТУРЫ        39

Приложение 1        41

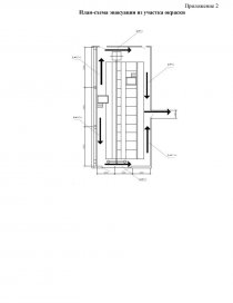
Приложение 2        43


ИСХОДНЫЕ ДАННЫЕ

№ п/п

Параметры

Информация

1

Максимальная площадь этажа  [pic 2]

864

2

Этажность (высота)

1 этаж

3

Степень огнестойкости

II

4

Категория производства по пожарной опасности

Б

5

Класс функциональной пожарной опасности

Ф5.1

6

Класс конструктивной пожарной опасности

С0

7

Конструктивная схема здания

Железобетонный каркас с несущими продольными и поперечными стенами

8

Конструкция:

Железобетонные колонны сечением 400*400 мм. с пределом огнестойкости R 90

несущие элементы здания;

элементы перекрытий

Железобетонные пустотные плиты, укладываемые на ригели, с пределом огнестойкости REI 45

элементы покрытий

Несущая железобетонная плита 300 мм. RE 15

Ковёр рулонной кровли из рубероида класса горючести Г4

наружные стены

Наружные стены  самонесущие панельные, толщиной 150мм с  утеплителем из стекловолокна и кварцевого песка URSA GEO E 15

противопожарные преграды

Стены кирпичные 250 мм REI 150

Перегородки ограждающие кирпичные 150 мм EI 45

9

Двери и ворота

В противопожарных перегородках между участком окраски и участком хранения и приготовления красок, и между участком окраски и тамбур - шлюзом, дверные проёмы выходов наружу – противопожарные двери 1 типа. Ворота участка окраски и наружной мойки - 1 типа, противопожарные.

Двери выходов из санузлов, душевой, гардеробной – пластиковые.

Остальные двери – глухие деревянные.

В подъёмно-опускных воротах дебаркадеров предусмотрены распашные калитки,

В остальных проёмах установлены глухие деревянные двери, в том числе в лестничных клетках и технических помещениях

10

Применяемые на путях эвакуации отделочные материалы:

Негорючие

Полы

Стены

Негорючие

Потолки

Негорючие

12

Противодымная защита

Предусмотрено дымоудаление на опасных участках с помощью вытяжной вентиляции

13

Автоматическая установка пожарной сигнализации

Предусмотрены тепловые и ручные извещатели

14

Автоматическая установка пожаротушения

Предусмотрена АУПП и АУПТ, совмещенная с объёдинённым производственным и хозяйственно – питьевым водопроводом

15

Система оповещения и управления эвакуацией при пожаре

Предусмотрена СОУЭ 1-го типа

16

Внутренний противопожарный водопровод

Не предусмотрен

Спецификация дверных проёмов

...

Скачать:   txt (96 Kb)   pdf (558.1 Kb)   docx (674.9 Kb)  
Продолжить читать еще 25 страниц(ы) »
Доступно только на Essays.club