Essays.club - Получите бесплатные рефераты, курсовые работы и научные статьи
Поиск

Проектирование конструкции корпуса судна

Автор:   •  Октябрь 26, 2022  •  Контрольная работа  •  1,798 Слов (8 Страниц)  •  369 Просмотры

Страница 1 из 8

1 Проектирование конструкции корпуса судна

  1. Краткая характеристика судна

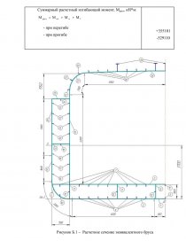
Исходные данные к работе:

Класс РМРС  КМ[pic 1] Ice21 AUT1 Container Ship

Главные размерения: L*B*D*d=171,3*24,5*14,05*10,4 м

[pic 2]

  1. Разработка схемы общего расположения судна, выбор системы набора, материала корпуса

Балки поперечного набора устанавливают на определенном расстоянии одну от другой, называемом шпангоутным расстоянием. Промежуток между этими балками называют шпацией. Нормальная шпация рассчитывается по Правилам Регистра:

а0= 0,002*L+0,48 (м),                                                                                        (1.1)

для данного судна это составляет:

а0= 0,002*125,1+0,48=0,7 (м).

Шпацию в пиках принимаем 0,6м,  в средней части судна -  0,7м. В носовой части судна не присутствует переходная шпация, так как нормальная шпация составляет 0,7м. Длина форпика в соответствии с Правилами Регистра должна составлять (0,05÷0,08)*L, что для данного судна составляет 6,255÷10,0 (м). Длина ахтерпика (0,05÷0,06)*L, составляет 6,255÷7,5 (м). В таблице  1.1 приведена окончательная протяжённость районов различной шпации.

Таблица  1.1 - Окончательная протяжённость районов различной шпации

Название отсека

Район расположения, шп.

Длина, м

Форпик

0-12

12*0,6=7,2

Район нормальной шпации

12-171

159*0,7=111,3

Ахтерпик

171-182

11*0,6=6,6

∑125,1м

[pic 3]

Рисунок  1.1 – Район различной шпации

Общее число поперечных водонепроницаемых переборок, включая переборки форпика и ахтерпика, должно быть, как правило, не менее указанного в таблице  . Эти требования относятся только к грузовым судам и являются минимальными. Количество переборок задается Регистром, что составляет на данном контейнеровозедлиной 125,1м и машинным отделением в корме судно имеет не менее 7 переборок. Длину контейнеровоза  принимаем из условия lт≤0,1L, чтобы обойтись без отбойных переборок. Длина машинного отделения на современных судах составляет (0,08÷0,17)*L, то есть для данного судна 10,0÷24,14, (м). С учетом шпации 0,7м длина машинного отделения составляет lмо=0,7*15=10,5м.[pic 4]

Таблица   – Разбивка судна на шпации

Название отсека

Район расположения, шп.

Длина, м.

Форпик

0-12

12*0,6=7,2

Диптанк

12-16

4*0,7=2,8

Танк 1(2)

16-37

21*0,7=14,7

Танк 3(4)

37-58

21*0,7=14,7

Танк 5(6)

58-79

21*0,7=14,7

Танк 7(8)

79-99

20*0,7=14,0

Танк 9(10)

99-120

21*0,7=14,7

Танк 11(12)

120-141

21*0,7=14,7

Отстойные танки

141-149

8*0,7=5,6

Топливная цистерна

149-154

5*0,7=3,5

Коффердам

154-156

2*0,7=1,4м

Машинное отделение

156-171

15*0,7=10,5

Ахтерпик

171-182

11*0,6=6,6

∑125,1м

Положение мидель-шпангоута:

[pic 5] - половина длины судна. От форпика до мидель-шпангоута остается 62,55–7,2=55,35(м), что составляет 79+50 шпаций, то есть мидель-шпангоут расположен (79+50 +12) на 91+50 шпации-63,7м (рисунок 2.1.2).

...

Скачать:   txt (24.5 Kb)   pdf (1.1 Mb)   docx (999.4 Kb)  
Продолжить читать еще 7 страниц(ы) »
Доступно только на Essays.club