Essays.club - Получите бесплатные рефераты, курсовые работы и научные статьи
Поиск

Приспособления для фрезерования паза

Автор:   •  Май 21, 2023  •  Курсовая работа  •  2,238 Слов (9 Страниц)  •  241 Просмотры

Страница 1 из 9

[pic 1][pic 2]

Содержание:

Введение……………………………………………………………………………….3

1 Исходные данные..……… …………………………………………………………4

2 Разработка технологического процесса…………………………………………...6

3 Выбор модели станка для операции 100…………………………………………17

3 Выбор режущего инструмента для операции 100……………………………….19

6 Расчет режимов резания…………………………………………………………..21

7 Конструирование приспособления……………………………………………….23

8 Выбор силового привода устройства зажима……………………………………25

9 Расчет приспособления на точность……………………………………………..27

10 Расчет приспособления на прочность…………………………………………..30

Список используемой литературы…………………………………………………31

Приложение


Введение

Целью данной курсовой работы является создание приспособления для фрезерования паза. Для достижения поставленной цели необходимо решить следующие задачи:

1 Проанализировать технологичность исходной детали;

2 Выбрать оборудование;

3 Выбрать режущий инструмент;

4 Провести расчет режимов резания;

3 Разработать схему базирования и схему закрепления детали, согласно схемы закрепления сконструировать приспособление для фрезерования паза;

5 Рассчитать необходимые усилия зажима;

6 Провести расчет приспособления на точность

7  Провести расчет приспособления на прочность.


1 Исходные данные

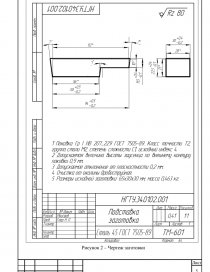
На рисунке 1 изображен чертеж готовой детали “Подставка”, на рисунке 2 чертеж ее заготовки. Годовая производственная программа – 100000, производство крупносерийное.

[pic 3]

Рисунок 1 – Чертеж детали

[pic 4]

Рисунок 2 – Чертеж заготовки


2 Разработка технологического процесса

Достигаемые квалитет и шероховатость после различных методов обработки на каждую операцию представлены в таблице 1.

Таблица 1 – Достигаемый квалитет и шероховатость

Номер операции

Метод обработки

Достигаемый квалитет

Достигаемая шероховатость

005

Фрезерование черновое с двух сторон

12

Ra 12,5

010

Фрезерование чистовое с двух сторон

11

Ra 6,3

015

Фрезерование черновое с двух сторон

12

Ra 12,5

020

Фрезерование чистовое с двух сторон

11

Ra 6,3

025

Фрезерование черновое с двух сторон

12

Ra 12,5

030

Фрезерование чистовое с двух сторон

11

Ra 6,3

035

Фрезерование черновое

11

12,5

040

Фрезерование чистовое

9

Ra 1,25

045

Фрезерование чистовое

9

Ra 1,25

050-055

Фрезерование черновое

11

Ra 12,5

060

Фрезерование черновое

11

Ra 12,5

065

Сверление

12

Ra 12,5

Зенкерование

11

Ra 6,3

070

Сверление, нарезание резьбы

12

Ra 12,5

075

Сверление

11

Ra 6,3

Развертывание точное

8

Ra 2,5

Развертывание тонкое

7

Ra 1,25

Зенкерование, нарезание резьбы

9

Ra 6,3

080-085

Сверление

12

Ra 12,5

Зенкерование

11

Ra 6,3

090

Фрезерование тонкое

7

Ra 0,63

095

Сверление

11

Ra 6,3

Развертывание нормальное

9

2,5

Рассверливание, нарезание резьбы

9

Ra 2,5

100

Фрезерование чистовое

9

Ra 2,5

105

Фрезерование черновое

11

Ra 12,5

...

Скачать:   txt (34.9 Kb)   pdf (1.1 Mb)   docx (1.5 Mb)  
Продолжить читать еще 8 страниц(ы) »
Доступно только на Essays.club