Essays.club - Получите бесплатные рефераты, курсовые работы и научные статьи
Поиск

Отчет по практике в учебно-научно-производственном полигоне «Солуни»

Автор:   •  Январь 14, 2019  •  Отчет по практике  •  6,625 Слов (27 Страниц)  •  815 Просмотры

Страница 1 из 27

Министерство образования и науки Российской Федерации

Федеральное агентство по образованию

Государственное образовательное учреждение высшего

профессионального образования

«УФИМСКИЙ ГОСУДАРСТВЕННЫЙ НЕФТЯНОЙ

ТЕХНИЧЕСКИЙ УНИВЕРСИТЕТ»

Кафедра «Пожарная и

 промышленная безопасность»

ОТЧЕТ

ОБ УЧЕБНОЙ ПРАКТИКЕ

Руководитель от УГНТУ                                                        И.К.Бакиров

Практикант                                                        К.И. Хазеева

Студентка группы ПБ-17-01

Уфа 2018

СОДЕРЖАНИЕ

Характеристика на практиканта

Введение………………………………………………………….

  1. Укладка БОП. Отработка норматива ПСП №1.1.
  2. Спасательные верёвки, методы испытаний.
  3. Пожарные рукава, рукавная арматура, прокладка рукавов из скаток, соединение и разъединение рукавных головок, прокладка рукавных линий на местности, скатывание и уборка рукавов различными способами.
  4. Ручные пожарные стволы, работа со стволами с подачей воды.
  5. Табель и обязанности боевого расчёта.
  6. Отработка норматива ПСП №3.2.
  7. Способы забора воды при помощи Г-600.
  8. Ручные пожарные лестницы. Снятие, переноска, установка.
  9. Немеханизированный (ручной) пожарный инструмент, способы и приемы работы с ним. Диэлектрический инструмент.
  10. Мотопомпа, забор воды, б/р от мотопомпы с подачей воды
  11. Сбор и выезд в составе отделения по тревоге. Норматив ПСП №2.1

ПЕРЕЧЕНЬ ГРАФИЧЕСКОГО МАТЕРИАЛА

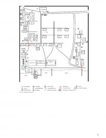
  1. Условно-графическое обозначение: АЦ, РС-50, РС-70, ПЛС, ГПС, СВП. Лестница-палка, штурмовка, 3-х коленная выдвижная, мотопомпа;
  2. Схему боевого развертывания от АЦ с подачей воды на тушение условного пожара

ВВЕДЕНИЕ

 Я, Камалова Элина Ильдаровна, студентка 1 курса «Уфимского государственного нефтяного технического университета»  специальности «Пожарная безопасность» проходила учебную практику в учебно-научно-производственном полигоне «Солуни» Уфимского государственного нефтяного технического университета в период с 27.06.2018 по 04.07.2018.

Целью учебной практики является: изучение правил охраны труда в пожарной охране, обязанностей должностных лиц подразделений пожарной охраны, правил технической эксплуатации пожарной техники и пожарно-технического оборудования; получение навыков работы с пожарной техникой и пожарно-техническим вооружением, боевой одеждой и снаряжением пожарных.

Государственная противопожарная служба — является видом пожарной охраны и частично входит в состав Министерства Российской Федерации по делам гражданской обороны, чрезвычайным ситуациям и ликвидации последствий стихийных бедствий (МЧС России) в качестве единой самостоятельной оперативной службы, сегодня самый многочисленный вид пожарной охраны. Ее численность составляет около 280 тысяч человек, которые содержатся за счет федерального бюджета (23,4%), бюджетов субъектов (49,3%) и на договорной основе с охраняемыми предприятиями (27,3%).

Государственная противопожарная служба подразделяется на федеральную противопожарную службу и противопожарную службу субъектов Российской Федерации.

В соответствии с Федеральным законом "О пожарной безопасности" пожарная охрана в Российской Федерации подразделяется на следующие виды:

- Государственная противопожарная служба;

- муниципальная пожарная охрана;

- ведомственная пожарная охрана;

- частная пожарная охрана;

- добровольная пожарная охрана.

Основными задачами пожарной охраны являются:

- организация и осуществление профилактики пожаров;

...

Скачать:   txt (94.7 Kb)   pdf (850.1 Kb)   docx (739.9 Kb)  
Продолжить читать еще 26 страниц(ы) »
Доступно только на Essays.club