Essays.club - Получите бесплатные рефераты, курсовые работы и научные статьи
Поиск

Проектирование локальной вычислительной сети

Автор:   •  Июнь 27, 2018  •  Курсовая работа  •  1,515 Слов (7 Страниц)  •  1,209 Просмотры

Страница 1 из 7

МИНИСТЕРСТВО СЕЛЬСКОГО ХОЗЯЙСТВАРОССИЙСКОЙ ФЕДЕРАЦИИ

ФГБОУ ВО

«ПЕРМСКАЯ ГОСУДАРСТВЕННАЯ СЕЛЬСКОХОЗЯЙСТВЕННАЯ АКАДЕМИЯ ИМЕНИ АКАДЕМИКА Д.Н. ПРЯНИШНИКОВА»

ФАКУЛЬТЕТ ПРИКЛАДНОЙ ИНФОРМАТИКИ

Кафедра ИТАП

КУРСОВОЙ ПРОЕКТ

По дисциплине «Инфокоммуникационные системы и сети»

Тема: «Проектирование локальной вычислительной сети»

Пермь 2017

Содержание        

Введение        3

Подготовка к проектированию сети        4

Анализ исходных данных        4

Сетезависимая часть сети        5

Кабельная система сети        8

Организация сети        9

Тестирование сети        9

Организационные и технические меры по защите информации        10

Документы по комплектации сети и расчет затрат        10

Заключение        11

Список использованных источников        12


Введение

Локальная вычислительная сеть — компьютерная сеть, покрывающая обычно относительно небольшую территорию или небольшую группу зданий (дом, офис, фирму, институт). В основе любой сети лежит аппаратный слой, который включает компьютеры различных классов. Набор компьютеров в сети должен соответствовать набору разнообразных задач, решаемых сетью.

Безусловно, вычислительные сети имеют и свои проблемы (сложности с совместимостью программного обеспечения, проблемы с транспортировкой сообщений по каналам связи с учётом обеспечения надежности и производительности), но главным доказательством эффективности является бесспорный факт их повсеместного распространения. Всё больше и больше появляются крупные сети с сотнями рабочих станций и десятками серверов.

Актуальность темы определяется необходимостью проектирования ЛВС.

Объектом курсового проекта является процесс проектирования локальной вычислительной сети для отдела стандартизации предприятия ООО «ТЕХ-МАШ».

Предметом исследования является проектирование ЛВС.

Субъектом является инфокоммуникационная сеть.

Цель курсового проекта: проектирование локальной сети.

Для достижения цели необходимо решить следующие задачи:

- изучить сетевые протоколы, аппаратное и программное обеспечение;

- рассчитать характеристики сети;

- рассчитать стоимость сети;

- разработать и создать локальную сеть.


Подготовка к проектированию сети

Отдел стандартизации является самостоятельным подразделением предприятия. В состав отдела входит 8 человек. Отдел стандартизации имеет следующую структуру:

  • начальник отдела стандартизации;
  • заместитель начальника отдела, по совместительству инженер по контролю качества;
  • специалист по нормативно-технической документации;
  • 4 человека — специалисты-эксперты качества.

Задачи отдела:

  • обеспечение единства стандартов, применяемых на предприятии;
  • проведение экспертизы качества;
  • разработка новых стандартов;
  • участие в опытно-конструкторских и экспериментальных работах.

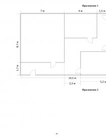
Отделу стандартизации выделили новое помещение (Приложение 1), поэтому существует необходимость создания сети. Выделенное помещение имеет 3 рабочих кабинета и 2 подсобных помещения.

Информационная система данного отдела представляет собой рабочие места, оборудованные персональными компьютерами на которых установлено необходимое программное обеспечение. Сеть предназначается для документооборота внутри отдела, а также для обмена данными с сервером. Сетевое и аппаратное оборудование и каналы связи необходимо приобрести.

...

Скачать:   txt (21.8 Kb)   pdf (544 Kb)   docx (688.7 Kb)  
Продолжить читать еще 6 страниц(ы) »
Доступно только на Essays.club